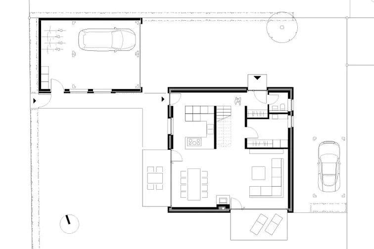
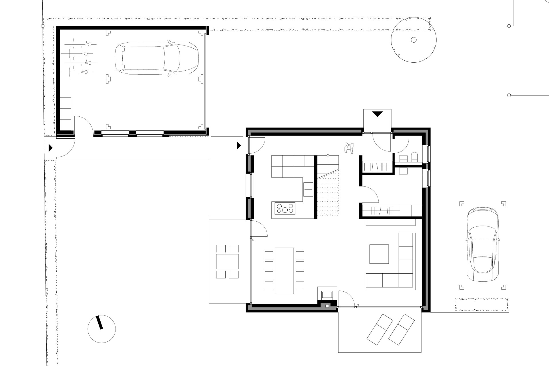
Dies ist ein typisches Einfamilienhaus. Auf den ersten Blick. Doch auf den zweiten zeigt es sein kreatives Spiel mit Räumen und Flächen. Für die Eltern gibt es einen eigenen Bereich mit Ankleide, Sauna und Balkon zum anschließenden Abkühlen.















Zahlen, Daten, Fakten
Architekt LP1-5: Stefan Unnewehr, Telgte
Bauherr: privat
Tragwerksplanung: IPF ingenieurbau planungsbüro fockenbrock, Telgte
Wärmeschutznachweis: Ingenieurbüro Früchte, Sendenhorst
Fotos: Stefan Unnewehr, Telgte
Laufzeit: 2015-2016